一、概述
1、产品概述:
FN16A-12D/630型户内交流高压真空负荷开关及FN16A-12RD/200-31.5型负荷开关-熔断器组合电器是我厂自行设计研制而成的.性能达到GB3804-90《3-63KV交流高压负荷开关》和IEC420《交流高压负荷开关-熔断器组合电器》(1990年版)标准及国家标准(报批稿)的要求。具有体积小、外形美观、安装灵活、操作力小、开断安全可靠、电寿命长、可频繁每操作、开断转移电流大、基本不需要维护,有明显的各里断口且具有手、电动二用功能,可实现远距离控制等优点。负荷开关-熔断器组合电器还具有保护变压器过载,防止设备缺相运行的功能。
2.主要用途
FN16A-12D/630型负荷开关和FN16A-12RD/200-31.5型组合电器适用交流50Hz,额定电压6-10KV的网络中。FN16A-12D/630可开断负荷电流,FN16A-12RD/200-31.5可开断负荷电流,过载电流和短路电流,特别适用于无油化,不检修及频繁操作要求的场所。本产品可配用CS6-Ⅰ型操作机构,也可在开关上直接操作,不必另附操作机构。选用FN16A-12D/12-J型开关可同时实现电动和手动操作。
二、型号含义

三、使用环境条件
A 、周围空气温度:上限+40 C ;下限-25
b 、相对湿度:月平均值不大于90%;日平均值不大于95%
c 、海拔不超过:1000m;
d 、周围无腐蚀或可燃性气体等明显污染;
e 、无经常性的剧烈震动。
四、技术参数
FN16A-12D/630型负荷开关-熔断器组合电器组合电器的技术参数见表1:
| 序号 | 项目 | 单位 | 参数 |
| 1 | 额定电压及工作电压 | KV | 12 |
| 2 | 额定频率 | Hz | 50 |
| 3 | 额定电流 | A | 630 |
| 4 | 额定有功负载开断电流 | A | 630 |
| 5 | 额定闭环开断电流 | A | 630 |
| 6 | 5%额定有功负载断电流 | A | 31.5 |
| 7 | 额定电缆充电开断电流 | A | 10 |
| 8 | 额定电容开断电流 | A | 400 |
| 9 | 额定空载变压器开断电流 | 1600VA变压器空载电流 | |
| 10 | 1min 工频耐受电压(有效值)对地、相间、真空断口/隔离断口 | KV | 42/48 |
| 11 | 全波雷电冲击耐受电压(峰值)对地、相间、真空断口/隔离断口 | KV | 75/85 |
| 12 | 额定短时耐受电流(热稳定) | KVIS | 3月20日 |
| 13 | 额定峰值耐受电流(动稳定) | KV | 50 |
| 14 | 额定短路关合电流 | KV | 50 |
| 15 | 额定电流开断次数 | 次 | 10000 |
| 16 | 机械寿命 | 次 | 10000 |
| 17 | 触头允许磨损累计厚度 | mm | 3 |
| 18 | 分合盏操作力距(力) | 120(240) | |
| 19 | 额定分闸操作电压/电流 | V/A | ~220/0.5 |
| 20 | 额定分闸操作电压/电流 | V/A | ~220/3 |
FN16A-12RD/200-31.5负荷开关-熔断器组合电流的技术参数见表2
| 序号 | 项目 | 单位 | 参数 |
| 1 | 额定电压及工作电压 | KV | 12 |
| 2 | 额定频率 | Hz | 50 |
| 3 | 熔断器较大额定电流 | A | 200 |
| 4 | 额定转移电流 | A | 3150 |
| 5 | 熔断管触发开关的分闸时间 | ms | 310+5 |
| 6 | 额定短路开断电流(预期有效值) | KA | 31.5 |
| 7 | 额定短路开断关合电流(预期峰值) | KA | 80 |
| 8 | 1min工频耐受电压(有效值)对地、相间、真空断口/隔离断口 | KV | 42/48 |
| 9 | 雷电冲击耐受电压(峰值)对地、相间、真空断口/隔离断口 | KV | 75/85 |
| 10 | 熔断器撞击输出能量 | J | 2-5 |
隔离开关装配技术参数见表3
| 序号 | 项目 | 单位 | 参数 |
| 1 | 三相刚合位置不同期 | mm | ≤3 |
| 2 | 各相刚合位置偏斜 | mm | ≤2 |
| 3 | 触刀正压力 | N | 200±20 |
| 4 | 触刀最后分离点到静触头最小距离 | mm | ≥ |
| 5 | 静触头与上支架间主回路电阻 | υΩ | ≤100 |
FN16A/12RD/200-31.5型组合电器的配熔断器的技术阐述见表4.
| 型号 | 额定电压 | 熔断器额定电流 | 额定开断电流 | 熔体额定电流 |
| SDLAJ,XRNT□ | 12 | 40 | 50 | 6.3,10,16,20,25,31.5,40 |
| SDLAJ,XRNT□ | 100 | 50,63,71,80,100 | ||
| SDLAJ,XRNT□ | 125 | 125 | ||
| 德国SIBA公司 | 12 | 200 | 40 | 160,200 |
真空灭弧室装配调整的技术参数见表5:
| 序号 | 项目 | 单位 | 参数 |
| 1 | 触头开距 | Mm | ≤8+10 |
| 2 | 超行程(表现在超行程弹簧上) | mm | ≤5+10 |
| 3 | 平均合闸速度 | m/s | 06±0.2 |
| 4 | 平均分闸速度 | m/s | 1±0.2 |
| 5 | 三相触头分、合闸不同期性 | ms | ≤2 |
| 6 | 触头合闸弹跳时间 | ms | ≤2 |
| 7 | 带电体之间及相对地距离 | mm | ≥125 |
| 8 | 上,下支架间主回路电阻 | υΩ | ≤60 |
接地开关的技术参数见表6
| 序号 | 项目 | 单位 | 参数 |
| 1 | 触头压力 | N | 200±200 |
| 2 | 接触面积 | 应大于视在面积的2/3 | |
| 3 | 三相刚合位置不同期 | mm | ≤3 |
| 4 | 各相刚合位置偏斜 | mm | ≤1.5 |
| 5 | 关合速度 | m/s | ≥2.5 |
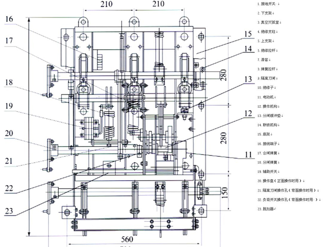
五、产品外形







© 2017 上海巨广电气有限公司 ALL RIGHTS RESERVED.沪ICP备13029985号-1